横浜市中区立野|古家つき土地の売却情報
販売価格 1,980万円
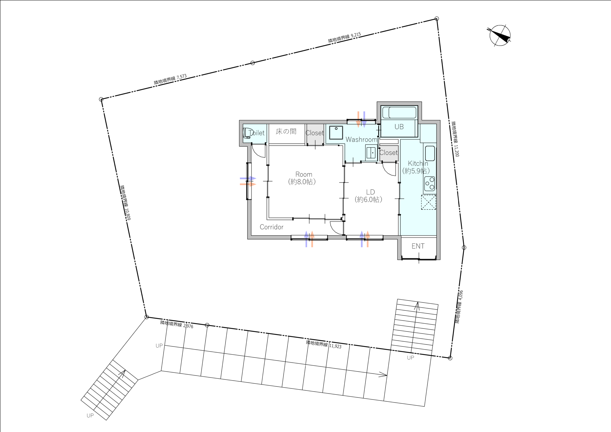
土地面積 208.47㎡
特徴
- 閑静な住宅街
- 緑豊かな住環境
- 南西向きにつき日当たり・眺望良好
- 山手駅まで徒歩5分
- 一部リフォーム履歴あり(令和6年12月)
バスルーム・洗面台 etc. - 確定測量済(令和3年)
- 通行・掘削承諾あり
横浜市中区立野|古家つき土地の概要
〈名称〉
横浜市中区立野(古家つき土地)
〈交通〉
JR京浜東北・根岸線「山手」駅 徒歩5分
〈土地〉
所在地 横浜市中区立野36-21
土地権利 所有権
土地面積 208.47㎡
私道負担 有 19.14㎡
セットバック7.49㎡
地目 宅地
地勢 高低差あり
接面道路 南西側 42条2項 約2.5m
※接道階段
都市計画 市街化区域
用途地域 第一種低層住居専用地域
建ぺい率 60%
容積率 100%
防火地域 準防火地域
日影規制 1.5m/3時間/2時間
高さ制限 10m
高度地区 第1種
その他 最低敷地100㎡
区画整理 —
街路計画 —
国土法 —
ガス 都市ガス
給水 公営水道
排水 公共下水
現況 古家あり
築年数不明
木造スレート葺平屋建
延床面積52.06㎡
引渡 相談
〈備考〉
現況引き渡し
免責事項 契約不適合による補償請求
代⾦減額請求
損害賠償請求
〈備考〉
※現況と相違がある場合、現況優先とする
※Google Mapsによる距離計算に基づく
※道路距離80m=徒歩1分換算
(不動産の表示に関する公正競争規約第15条第11号)
株式会社JUNXION(ジャンクション)
横浜市中区海岸通4-23-9F
電話番号 045-341-0180
営業時間 10:00~18:00 定休日 火・水曜日
取引態様 専任媒介
広告転載 可 ※要連絡
担当者 辻
土地・戸建の売却査定
不動産売却相談×年間実績1,000件以上
不動産売却のプロとして「あたりまえの仕事」を心がけ、数多くオーナーのご期待にお答えしてきた私たちなら力になれるはずです。

\不動産売却のプロがトータルサポート/
無料相談!売却成功へアドバイス!
いますぐ電話で相談する
0120-750-180
しつこい営業はございません。
不動産のお悩みは人それぞれ。まずは相談を
営業時間/10:00〜18:00 火・水曜定休









