ブルーハーバータワーみなとみらい27F最上階|中古マンションの売却情報
販売価格 価格改定22,800万円
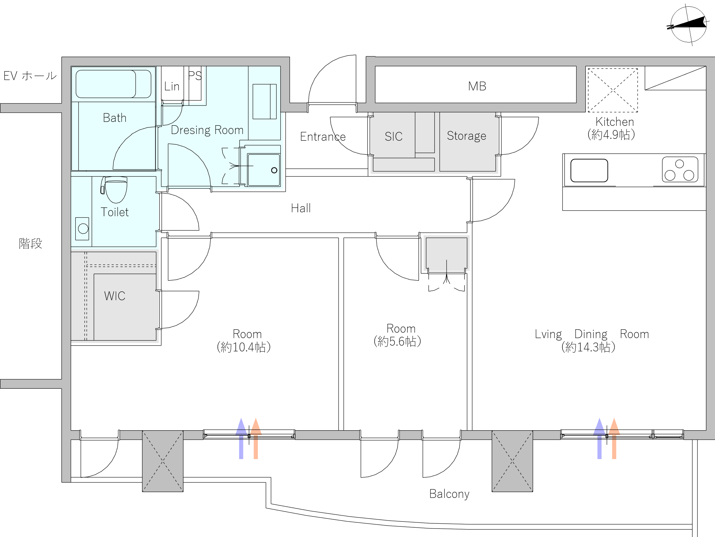
専有面積 壁芯86.50㎡(約26.16坪)
バルコニー面積 17.76㎡
間取り 2LDK+WIC+SIC+storage
特徴
- 最上階プレミアムフロア/西向きにつき通風・日当たり・眺望良好※シティビュー
- 2025年12月クリーニング済
- 大成建設旧施工の免震構造タワーマンション
- 省エネルギー対策「最高等級4」取得
- 最大奥行2m・幅10mを超えるワイドスパンバルコニー
- ホテルライクな内廊下・コンシェルジュサービス有
- 総戸数355戸のビッグコミュニティ
- トリプルオートロック・防犯センサー・24時間有人管理で安心のセキュリティ
- 各階にダストステーション・防災倉庫・非常用発電機・AED有
- ビッグターミナル「横浜駅」利用可能
充実の設備 ミストサウナ機能付き浴室暖房乾燥機|低床式保温浴槽|キレイサーモフロア|人工大理石カウンター型システムキッチン|IHクッキングヒーター|静音シンク|浄水器一体型混合水栓|食器洗浄乾燥機|ディスポーザー|温水洗浄機能付きトイレ|TES式床暖房(リビング)|大容量収納(WIC・SIC等)|二重天井・床構造|複層ガラス|ビルトインエアコン(角居室)
共用施設 1Fギャラリーホール・クラブサロン・ペット足洗い場|電動レンタサイクル|2Fグランドラウンジ|屋上スカイラウンジ
- 地域冷暖房
みなとみらい地区では電気・水道・CATV等のインフラ設備が、道路地下の共同溝に収容されています。熱供給システムである地域冷暖房は、みなとみらいエリアならではの先進的な特徴といえ、熱源を街全体で集中的に製造し供給することにより大気汚染や公害防止、都市災害の防止、都市景観の向上等の様々なメリットを生み出します。
地域冷暖房システムによる熱源を冷暖房・給湯・床暖房等に利用することで、都市の良質な環境づくりに貢献すると共に、給湯器や室外機の設置を不要とし無駄のない居住空間を実現しています。
ブルーハーバータワーみなとみらい27F最上階|中古マンションの概要
〈名称〉
ブルーハーバータワーみなとみらい27F
最上階
〈交通〉
みなとみらい線
「新高島」駅 徒歩8分
「みなとみらい」駅 徒歩9分
JR各線・東横線・京急本線・相鉄線「横浜」駅 徒歩約15分
〈土地〉
所在地 横浜市西区みなとみらい6丁目3-4
土地権利 所有権
土地面積 9113.12㎡
共有持分 23490/1000万
都市計画 市街化区域
用途地域 商業地域
防火地域 防火地域
高度地区 第7種
接面道路 公道(42条1項1号)
〈建物〉
構造 RC造地下1階付27階建
建築年月 2017年3月
専有面積 壁芯86.50㎡
総戸数 355戸
間取り 2LDK
分譲会社 三井不動産レジデンシャル
近鉄不動産
施工会社 大成建設
管理会社 近鉄住宅管理
管理形態 全部委託/日勤
管理費 月額26,500円
修繕積立金 月額18,300円
ネット 月額990円
クラブ 月額300円
ガス 地域冷暖房システム
給湯 地域冷暖房システム
民泊 不可
現況 空室
引渡 相談
〈共用施設・設備〉
エレベーター 3機有
宅配ボックス 有
駐車場 敷地内空無/月額26,000~38,000円
駐輪場 敷地内有/月額300~500円
バイク置場 敷地内空無/月額5,000円
〈免責事項〉
建物状況調査 売主にて実施予定無
〈備考〉
※現況と相違がある場合、現況を優先とする
※Google Mapsによる距離計算に基づく
※道路距離80m=徒歩1分換算
(不動産の表示に関する公正競争規約第15条第11号)
株式会社JUNXION
横浜市中区海岸通4-23-9F
電話番号 045-341-0180
営業時間 10:00~18:00
定休日 火・水曜日
取引態様 専任媒介
広告転載 可 但し要連絡
1ポータルサイト1社限定
担当者 辻
不動産売却相談×年間実績1,000件以上
不動産売却のプロとして「あたりまえの仕事」を心がけ、数多くオーナーのご期待にお答えしてきた私たちなら力になれるはずです。

\不動産売却のプロがトータルサポート/
無料相談!売却成功へアドバイス!
いますぐ電話で相談する
0120-750-180
しつこい営業はございません。
不動産のお悩みは人それぞれ。まずは相談を
営業時間/10:00〜18:00 火・水曜定休





















